找回密码
 立即注册
查看: 2827|回复: 6

[1号线] 1号线便利店、自助售货机招商

[复制链接]
发表于 2025-9-16 17:43:44 | 显示全部楼层 |阅读模式

原地铁e族论坛因故导致所有用户资料灭失,您需要重新注册,资料灭失过程请到网站公告《论坛重开说明》查看;

您需要 登录 才可以下载或查看,没有账号?立即注册

×
原文:

http://www.dggdjt.com/info/17066.htmx
http://www.dggdjt.com/info/17065.htmx
微信图片_20250916174232_262_1.png
微信图片_20250916174118_261_1.png
回复

使用道具 举报

 楼主| 发表于 2025-9-16 17:49:20 | 显示全部楼层
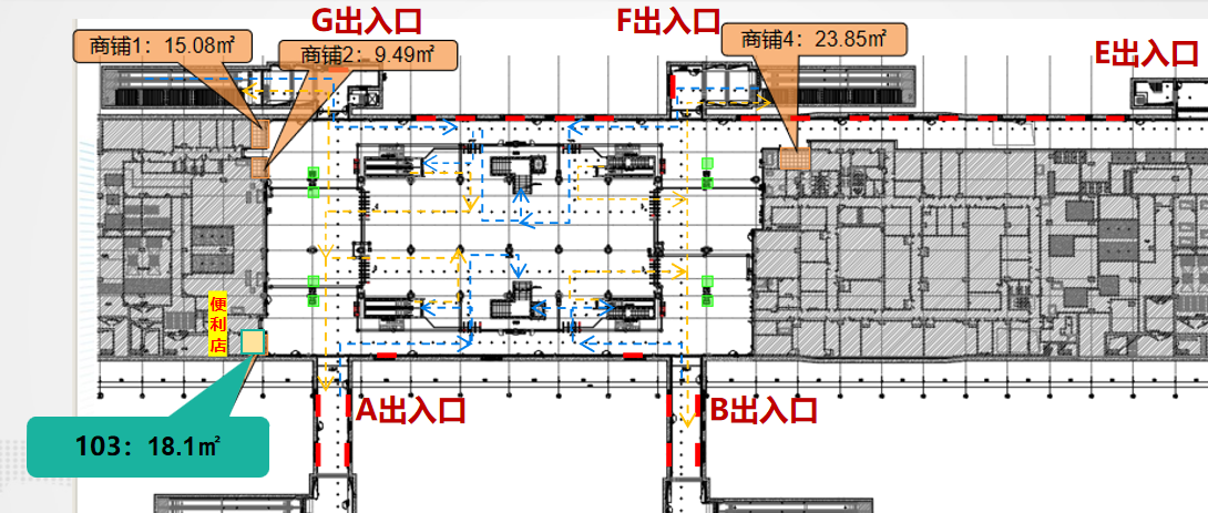
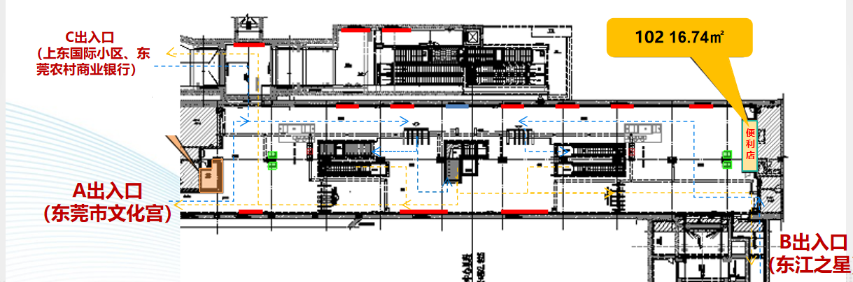
各站便利店位置,可见站厅平面图
坝头站.png
大朗站.png
大岭山站.png
东城南站.png
东莞西站.png
凤山站.png
广东医大站.png
黄江站.png
黄牛埔站.png
金桔站.png
立新站.png
荔香公园站.png
连平站.png
梅塘站.png
牛山站.png
曲海站.png
人民医院站.png
松佛站.png
松山湖站.png
同沙公园站.png
元美站.png
中心广场站.png
回复

使用道具 举报

发表于 2025-9-18 13:37:10 来自手机 | 显示全部楼层
我猜應該7-11有興趣?
回复

使用道具 举报

 楼主| 发表于 2025-10-16 17:23:13 | 显示全部楼层
车站商铺便利店重新招商,同时纳入了段场的便利店
http://www.dggdjt.com/info/17392.htmx
回复

使用道具 举报

 楼主| 发表于 2025-10-22 17:55:07 | 显示全部楼层
深圳市蚂蚁零兽科技有限公司中标自助售货机
http://www.dggdjt.com/info/17452.htmx
回复

使用道具 举报

发表于 2025-10-22 18:32:03 | 显示全部楼层
57个售货机位置,4.3W的租金,
合:1台机器一个月租金750元。 一台售货机一天的租金25元。
怪不得地铁站的售货机的饮料比外面正常的贵1元左右。也是合理的价格了。
回复

使用道具 举报

 楼主| 发表于 2025-11-27 18:12:14 | 显示全部楼层
部分站点商铺修改租金
微信图片_20251127181045_97886_453.png
回复

使用道具 举报

您需要登录后才可以回帖 登录 | 立即注册

本版积分规则

Archiver|手机版|小黑屋|地铁e族

GMT+8, 2026-1-30 11:04 , Processed in 0.015671 second(s), 17 queries, Protocol: HTTP/2.0.

Powered by Discuz! X3.5

© 2001-2026 Discuz! Team.

快速回复 返回顶部 返回列表