找回密码
 立即注册
查看: 1634|回复: 2

[2号线] 2号线车站AI手机自动贴膜机项目招商公告

[复制链接]
发表于 2025-9-16 17:51:05 | 显示全部楼层 |阅读模式

原地铁e族论坛因故导致所有用户资料灭失,您需要重新注册,资料灭失过程请到网站公告《论坛重开说明》查看;

您需要 登录 才可以下载或查看,没有账号?立即注册

×
原文:http://www.dggdjt.com/info/17067.htmx
微信图片_20250916175042_263_1.png

评分

参与人数 1威望 +1 收起 理由
阳光彩虹小白猹 + 1 神马都是浮云

查看全部评分

回复

使用道具 举报

 楼主| 发表于 2025-9-16 17:55:17 | 显示全部楼层
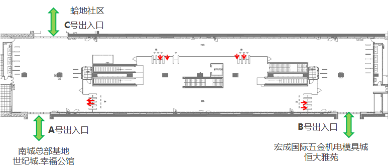
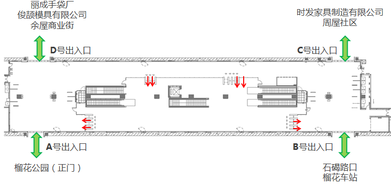
文件内可见各站站厅平面图
茶山站.png
陈屋站.png
东城站.png
东莞火车站.png
蛤地站.png
虎门火车站二层.png
虎门火车站一层.png
寮厦站.png
榴花公园站.png
旗峰公园站.png
珊美站.png
市民中心站.png
天宝站.png
西平站.png
下桥站.png
展览中心站.png
回复

使用道具 举报

发表于 2025-9-16 18:53:57 | 显示全部楼层
看起来不错
回复

使用道具 举报

您需要登录后才可以回帖 登录 | 立即注册

本版积分规则

Archiver|手机版|小黑屋|地铁e族

GMT+8, 2026-1-30 11:04 , Processed in 0.018863 second(s), 21 queries, Protocol: HTTP/2.0.

Powered by Discuz! X3.5

© 2001-2026 Discuz! Team.

快速回复 返回顶部 返回列表